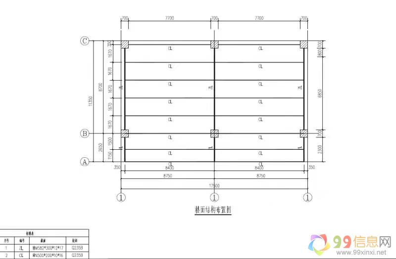
一、剪力墙平法施工图识图步骤
(1)查看图名、比例
(2)与建筑图配合,明确各段剪力墙的暗柱和端柱的编号、数量及位置,墙身的编号和长度,洞口的定位尺寸9~9~信~息~网。义鑫建筑设计
(3)所有洞口的上方必须设置连梁,且连梁的编号应与剪力墙洞口编号对应9~9~信~息~网。根据连梁的编号,查阅剪力墙梁表或图中标注,明确连梁的截面尺寸、标高和配筋情况aXEk。再根据抗震等级、设计要求和标注构造详图确定纵向钢筋和箍筋的构造要求,如纵向钢筋深入墙面的锚固长度、箍筋的位置要求等来源www.99xinxi.net。
(4)根据各段剪力墙身的编号,查阅剪力墙身表或图中标注,明确剪力墙身的厚度、标高和配筋情况来自www.99xinxi.net。再根据抗震等级、设计要求和标准构造详图确定水平分布筋、竖向分布筋和拉筋的构造要求、如水平钢筋的锚固和搭接长度、弯折要求、竖向钢筋的连接方式、位置和搭接长度、弯折的锚固要求9_9_x_i_n_x_i_n_e_t。义鑫建筑设计
二、剪力墙构件钢筋构造
1. 剪力墙身水平钢筋构造
(1)水平筋再剪力墙身中的构造
(2)水平分布筋在暗柱中的构造
2. 水平钢筋在端柱中的构造
(1)在直墙端柱中的构造
(2)在翼墙端柱中的构造
(3)在转角墙端柱中的构造,义鑫建筑设计
3. 剪力墙身竖向钢筋构造
(1)竖向分布筋在剪力墙中构造
(2)剪力墙竖向钢筋顶部构造
(3)剪力墙变截面处竖向钢筋构造
(4)剪力墙竖向分布筋链接构造

辽宁汗蒸房,沈阳建设汗蒸馆,丹东电气石汗蒸房,大连洗浴汗蒸建设,鞍山家庭用汗蒸房,抚顺托玛琳汗蒸,本溪玛瑙浴房,锦州洗浴汗蒸装修,营口家庭汗蒸房厂家,阜新专业汗蒸房,辽阳火龙浴,盘锦岩盘浴,铁岭黄土房,朝阳玉石房,葫芦岛汗蒸

沈阳收购冬虫夏草 回收鹿茸 回收东阿阿胶价格

沈阳市礼品回收:冬虫夏草、淡干黑海参、白燕窝、鹿茸、茅台酒、老酒、洋酒、高档红酒V136(话)991(同)22221(号)”产品价格是同等产地、厂家、规格还要看干度、颜色、数量、几级品、和生产日期而定

沈阳市礼品回收:冬虫夏草、淡干黑海参、白燕窝、鹿茸、茅台酒、老酒、洋酒、高档红酒V136(话)991(同)22221(号)”产品价格是同等产地、厂家、规格还要看干度、颜色、数量、几级品、和生产日期而定

沈阳市“冬虫夏草回收”公司[全市范围内]诚信登门(不邮寄)高价(以质论价)诚信(实事求是)计量精准(不缺斤少两)童叟无欺(不干缺德事)互利双赢[V136(话)991(同)22221(号)联系吧]目前冬

沈阳市╒收购冬虫夏草~定量25克至500克或以上数量不限。匹配礼品瓶、盒、罐、袋、兜等定量包或散装产品。冬虫夏草回收常见规格2个、3条、4头、5根、6只一克重量单位的。V话①③⑥⑨⑨①②②②②①同号╕

沈阳市宠物火化提供24小时专车接爱宠遗体,无痛安乐,清洁爱宠遗体,告别仪式,可全程陪同的火化过程,宠物纪念品,宠物寄存,宠物祭扫,宠物墓地......陪您安心的送完爱宠最后一程。
沈阳尸体长途运送车租赁随叫随到 异地接送殡葬业务咨询处可以办理跨省骨灰运输殡仪车租车,遗体运输跨省丧葬车租赁,长途骨灰运输殡葬车租车,长途骨灰返乡租用灵车,竖灵仪式等业务。殡葬车/殡仪车/送葬车/丧葬车/灵车租车接运手续:1、提供逝世医学证明书2、逝者有用身份证件3、办事家族有用身份证件4、北京本市殡葬车/殡仪车/送葬车/丧葬车/灵车租车遗体接运,是将逝者由家中或医院,接运至殡仪馆。5、殡葬车/殡仪车/送葬车/丧葬车/灵车租车异地遗体接运,是将逝者由本市送回异地老家,落叶归根。鲜花一束祭亲人,文
沈阳骨灰运送返乡团队一站式服务 就近派车殡葬业务咨询处可以办理跨省骨灰运输殡仪车租车,遗体运输跨省丧葬车租赁,长途骨灰运输殡葬车租车,长途骨灰返乡租用灵车,竖灵仪式等业务。殡葬车/殡仪车/送葬车/丧葬车/灵车租车接运手续:1、提供逝世医学证明书2、逝者有用身份证件3、办事家族有用身份证件4、北京本市殡葬车/殡仪车/送葬车/丧葬车/灵车租车遗体接运,是将逝者由家中或医院,接运至殡仪馆。5、殡葬车/殡仪车/送葬车/丧葬车/灵车租车异地遗体接运,是将逝者由本市送回异地老家,落叶归根。鲜花一束祭亲人,文
辽宁沈阳120出院车出租-提供随车医护全程高速重症救护车出租一 全天为您提供咨询和订车服务全年无休。二 急救车出租中心根据客户需求,以较快、较服务、较短时间内转送到国内各地医院。三 分为优秀,收费合理,有高速公路都跑高,紧急时候可以走救援车道,为病人争分夺秒!四 急救车出租中心长期承接机场火车站接送,各种剧组、影视拍摄基地、会展中心、大型商务服务医疗救援,价格合理安全可靠。五 北京急救车出租收费合理,价格从优。六 配备随车医护人员以及各种抢救设备仪器
沈阳-999救护车租赁-运动会保障车救护车出租可提供以下服务:1、患者康复出院回家,或前往养老、疗养院等非机构。2、临时放弃救治患者的出院回家。3、有服务需求的老年人、残障人士等,在非机构间往来的卧式接送服务。4、不属于院前急救的非急救出租服务,如不便患者出院后的复诊、需要就医的普通病症患者等。
辽宁沈阳跨省病号转运车租赁-提供随车医护全程高速跨省转运车一 全天为您提供咨询和订车服务全年无休。二 急救车出租中心根据客户需求,以较快、较服务、较短时间内转送到国内各地医院。三 分为优秀,收费合理,有高速公路都跑高,紧急时候可以走救援车道,为病人争分夺秒!四 急救车出租中心长期承接机场火车站接送,各种剧组、影视拍摄基地、会展中心、大型商务服务医疗救援,价格合理安全可靠。五 北京急救车出租收费合理,价格从优。六 配备随车医护人员以及各种抢救设备仪器
沈阳医院救护车出租-运动会保障车救护车出租可提供以下服务:1、患者康复出院回家,或前往养老、疗养院等非机构。2、临时放弃救治患者的出院回家。3、有服务需求的老年人、残障人士等,在非机构间往来的卧式接送服务。4、不属于院前急救的非急救出租服务,如不便患者出院后的复诊、需要就医的普通病症患者等。
辽宁沈阳新生儿救护车租赁-提供随车医护全程高速病号转运车一 全天为您提供咨询和订车服务全年无休。二 急救车出租中心根据客户需求,以较快、较服务、较短时间内转送到国内各地医院。三 分为优秀,收费合理,有高速公路都跑高,紧急时候可以走救援车道,为病人争分夺秒!四 急救车出租中心长期承接机场火车站接送,各种剧组、影视拍摄基地、会展中心、大型商务服务医疗救援,价格合理安全可靠。五 北京急救车出租收费合理,价格从优。六 配备随车医护人员以及各种抢救设备仪器
沈阳救护车出租-运动会保障车救护车出租可提供以下服务:1、患者康复出院回家,或前往养老、疗养院等非机构。2、临时放弃救治患者的出院回家。3、有服务需求的老年人、残障人士等,在非机构间往来的卧式接送服务。4、不属于院前急救的非急救出租服务,如不便患者出院后的复诊、需要就医的普通病症患者等。
辽宁沈阳新生儿救护车租赁-提供随车医护全程高速重症救护车出租一 全天为您提供咨询和订车服务全年无休。二 急救车出租中心根据客户需求,以较快、较服务、较短时间内转送到国内各地医院。三 分为优秀,收费合理,有高速公路都跑高,紧急时候可以走救援车道,为病人争分夺秒!四 急救车出租中心长期承接机场火车站接送,各种剧组、影视拍摄基地、会展中心、大型商务服务医疗救援,价格合理安全可靠。五 北京急救车出租收费合理,价格从优。六 配备随车医护人员以及各种抢救设备仪器
辽宁沈阳跨省病号转运车租赁-提供随车医护全程高速120出租一 全天为您提供咨询和订车服务全年无休。二 急救车出租中心根据客户需求,以较快、较服务、较短时间内转送到国内各地医院。三 分为优秀,收费合理,有高速公路都跑高,紧急时候可以走救援车道,为病人争分夺秒!四 急救车出租中心长期承接机场火车站接送,各种剧组、影视拍摄基地、会展中心、大型商务服务医疗救援,价格合理安全可靠。五 北京急救车出租收费合理,价格从优。六 配备随车医护人员以及各种抢救设备仪器
辽宁沈阳新生儿救护车租赁-提供随车医护全程高速儿童救护车出租一 全天为您提供咨询和订车服务全年无休。二 急救车出租中心根据客户需求,以较快、较服务、较短时间内转送到国内各地医院。三 分为优秀,收费合理,有高速公路都跑高,紧急时候可以走救援车道,为病人争分夺秒!四 急救车出租中心长期承接机场火车站接送,各种剧组、影视拍摄基地、会展中心、大型商务服务医疗救援,价格合理安全可靠。五 北京急救车出租收费合理,价格从优。六 配备随车医护人员以及各种抢救设备仪器
沈阳遗体运输车电话 异地接送殡葬业务咨询处可以办理跨省骨灰运输殡仪车租车,遗体运输跨省丧葬车租赁,长途骨灰运输殡葬车租车,长途骨灰返乡租用灵车,竖灵仪式等业务。殡葬车/殡仪车/送葬车/丧葬车/灵车租车接运手续:1、提供逝世医学证明书2、逝者有用身份证件3、办事家族有用身份证件4、北京本市殡葬车/殡仪车/送葬车/丧葬车/灵车租车遗体接运,是将逝者由家中或医院,接运至殡仪馆。5、殡葬车/殡仪车/送葬车/丧葬车/灵车租车异地遗体接运,是将逝者由本市送回异地老家,落叶归根。鲜花一束祭亲人,文明环保树新风
沈阳遗体接送殡仪车出租收费合理 异地接送殡葬业务咨询处可以办理跨省骨灰运输殡仪车租车,遗体运输跨省丧葬车租赁,长途骨灰运输殡葬车租车,长途骨灰返乡租用灵车,竖灵仪式等业务。殡葬车/殡仪车/送葬车/丧葬车/灵车租车接运手续:1、提供逝世医学证明书2、逝者有用身份证件3、办事家族有用身份证件4、北京本市殡葬车/殡仪车/送葬车/丧葬车/灵车租车遗体接运,是将逝者由家中或医院,接运至殡仪馆。5、殡葬车/殡仪车/送葬车/丧葬车/灵车租车异地遗体接运,是将逝者由本市送回异地老家,落叶归根。鲜花一束祭亲人,文

炫景效果图设计有限公司是一家专业从事专效果图设计的公司,有着8年效果图制作经验,拥有原创设计团队,效果图建模团队,效果图渲染团队,效果图后期制作团队,为您提供“一站式”尊贵专属服务。 主营业务: (一...
图牛效果图制作工作室是一家专业从事专效果图设计的公司,有着多年效果图制作经验,拥有原创设计团队,效果图建模团队,效果图渲染团队,效果图后期制作团队,为您提供“一站式”尊贵专属服务。 主营业务: (一)...
图牛效果图制作工作室积累了丰富的成功案例和设计经验,我们力求用较简洁的设计语言勾勒出较绚烂的成果,用我们完美的设计创意及出色的执行能力,以独具性价比的方案为您提供与你品牌相符的设计服务,以满足客户对市...
图牛效果图制作工作室是一家专业从事效果图设计的公司,有着多年效果图制作经验,公司业务涉全国各地区县及乡镇。我们以规划设计、建筑设计、景观设计、室内装饰设计为主,主要承接商业住宅小区、酒店、办公楼、洋房...
沈阳君艺制景景观雕塑造景园林工程有限公司,景观园林设计及施工一体的综合园艺景观公司,公司成立于2003年,公司多年来在全国各地从事园林景观景点造景艺术工程,现有设计师工程师近30人. 公司主要业务:园...
炫景效果图设计有限公司成立于2015年,是一家专业的效果图设计服务公司,主要从事室内外效果图与施工图的设计与制作。从创立以来,炫景效果图设计公司一直秉承以“优质产品、舒适价格”,持续与客户共赢的价值观...
本工作室是从事设计制做、排版、策划的专业服务机构,有着多的运作经验,与很多家集团、教育、IT行业、央企单位等合作过。运作灵活,创意新颖,构思独特,有着超前的市场意识,为广大客户提供了高质量、高效益,竭...

一、焊接球的质量要求焊接球及制造焊接球所采用的原材料,其品种、规格、性能等应符合现行国家产品标准和设计要求。焊接球直径、圆度、壁厚减薄凉等尺寸及允许偏差应符合国家现行规范的规定。焊接球表面应无明显波纹...

一、平法钢筋计算的计划和部署在充分地阅读和研究图纸的基础上,就可以制定平法钢筋计算的计划和部署,这主要是楼层划分中如何正确划定“标准层”的问题。在运行平法钢筋计算软件中,也可以使用“楼层拷贝”功能,把...

钢筋计算前的准备工作,需要我们认真地阅读和审查图纸,在这个基础上进行平法钢筋计算的计划和部署。一、阅读和审查图纸的一般要求我们现在所说的图纸是指土建施工图纸。义鑫建筑设计,施工图一般分为“建施”和“结...